بوستر پمپ آب مجموعهای از پمپها و تجهیزات کنترلی است که برای افزایش فشار و تأمین پایدار آب در ساختمانها، صنایع و سیستمهای آتشنشانی به کار میروند. در شرایطی که یک پمپ به تنهایی توان تأمین فشار یا دبی موردنیاز را ندارد، بوستر پمپ با عملکرد هوشمند و تنظیمشونده وارد عمل میشود تا فشار خروجی یکنواخت، مطمئن و بدون نوسان را فراهم کند. این ویژگیها باعث شده بوستر پمپها به یکی از مهمترین تجهیزات در تأسیسات آب رسانی تبدیل شوند و انتخاب صحیح آنها نقش مهمی در افزایش بهره وری، کاهش مصرف انرژی و طول عمر سیستم داشته باشد.
بوستر پمپ چیست
بوستر پمپ دستگاهی است که با هدف افزایش فشار آب در سیستمهای مختلف مورد استفاده قرار میگیرد و نقش بسیار مهمی در تأمین پایدار آب با فشاز یکنواخت دارد. در حقیقت، بوستر پمپ مجموعهای هماهنگ از چند الکتروپمپ است که روی یک شاسی یا بدنه مشترک نصب میشوند و به کمک تابلو برق و تجهیزات کنترلی هوشمند، عملکرد آنها بهصورت دقیق تنظیم و مدیریت میشود. این آرایش چندپمپه باعث میشود بوستر پمپ بتواند متناسب با میزان مصرف، تعداد پمپهای فعال را کم یا زیاد کرده و در نتیجه فشار موردنیاز را در هر لحظه تأمین کند. به کارگیری بوستر پمپ علاوه بر جلوگیری از نوسان فشار، موجب صرفه جویی در مصرف انرژی، کاهش استهلاک پمپها و افزایش کارایی سیستم آبرسانی در ساختمانها، صنایع، فضای سبز و بسیاری کاربردهای دیگر میشود.
خرید اینترنتی بوستر پمپ خانگی و آتش نشانی
گروه صنعتی آبادیزل امیدوار است توانسته باشد با این مطلب تمام سوال های ذهنی شما عزیزان را برطرف کرده باشد و با راهنمایی درست از بوجود آمدن هرگونه مشکل جلوگیری کند. شما می توانید برای خرید یا اطلاعات بیشتر با کارشناسان ما که تجربه بالایی در این زمینه دارند مشورت کنید. تا از بهترین و مناسب ترین نوع بوستر پمپ بهره مند شوید.
راهنمای خرید بوستر پمپ آب
راهنمای خرید بوستر پمپ آب شامل بررسی نیاز واقعی مصرف، میزان دبی و فشار موردنیاز، تعداد واحدها یا طبقات ساختمان و نوع کاربری سیستم است. هنگام انتخاب بوستر پمپ، باید به نوع پمپها (تکپمپ یا چندپمپ)، جنس قطعات، نوع پروانه و توان الکتروموتور توجه کنید. وجود تابلو کنترل مناسب—ترجیحاً با اینورتر برای کنترل دور—میتواند مصرف انرژی را کاهش دهد و عمر سیستم را افزایش دهد. همچنین بررسی برند سازنده، خدمات پس از فروش، میزان صدای دستگاه، فضای نصب و تجهیزات جانبی مانند مخزن تحتفشار یا لرزهگیر نیز اهمیت دارد. در نهایت انتخاب بوستر پمپ باید بر اساس محاسبات دقیق و مشاوره با متخصص انجام شود تا بهترین عملکرد و صرفه جویی در هزینهها حاصل شود.
قیمت بوستر پمپ خانگی و آتش نشانی
قیمت بوستر پمپ آبرسانی خانگی از قیمت بوستر پمپ آتش نشانی کمتر است. این قیمت کمتر بهدلیل تجهیزات کمتر بوستر پمپ خانگی است. بوستر پمپ خانگی آبرسانی بهدلیل دور متغیر بودن از تعداد پمپ کمتر و تجهیزات الکتریکی کمتری برخوردار است. قبل از خرید قیمت بوستر پمپ آتشنشانی را از صفحه آبادیزل استعلام کنید.
عوامل تاثیر گذار بر قیمت بوستر پمپ
به طور کلی عوامل موثر بر قیمت بوستر پمپ ها عبارتند از:
نوع بوستر پمپ (تکپمپ یا چندپمپ)
یکی از مهم ترین عوامل تعیینکننده قیمت، نوع بوستر پمپ است. بوستر پمپها میتوانند به صورت یک پمپ یا چند پمپه طراحی شوند. مدلهای چند پمپه به دلیل قدرت بیشتر، کارایی بالاتر و داشتن سیستم کنترل پیشرفتهتر معمولاً قیمت بالاتری دارند. همچنین نوع کاربری مثل آبرسانی، آتش نشانی یا مصارف صنعتی نیز روی قیمت اثر میگذارد.
جنس و کیفیت قطعات بهکاررفته
جنس بدنه، الکتروموتور، پروانهها و سایر قطعات تأثیر زیادی بر قیمت نهایی دارد. استفاده از استیل ضدزنگ، برنز یا آلیاژهای مقاوم در برابر خوردگی و حرارت باعث افزایش طول عمر بوستر پمپ میشود، اما هزینه ساخت و قیمت خرید را هم بالاتر میبرد. برند قطعات مصرفی نیز در ارزش نهایی دستگاه مؤثر است.
نوع سیستم کنترل و تابلو برق
پیشرفته بودن تابلو کنترل، نوع اینورتر یا سیستم کنترل دور متغیر (VFD)، و تجهیزات الکترونیکی استفاده شده بهطور مستقیم بر قیمت اثر میگذارد. بوستر پمپهایی که کنترل هوشمند، نمایشگر دیجیتال، محافظهای حرارتی و قابلیت تنظیم دقیق فشار دارند، قیمت بالاتری دارند اما عملکرد پایدارتر و مصرف انرژی کمتر ارائه میدهند.
ظرفیت و فشار مورد نیاز سیستم
هر چه نیاز به دبی آب بیشتر و فشار خروجی بالاتر باشد، پمپهای استفاده شده باید توان بیشتری داشته باشند. این مسئله باعث افزایش حجم موتور، بزرگتر شدن مخزن تحتفشار و قویتر شدن تجهیزات میشود که قیمت نهایی بوستر پمپ را بالا میبرد. انتخاب ظرفیت مناسب معمولاً بر اساس شرایط پروژه و محاسبات مهندسی انجام میشود.
برند و کشور سازنده
برندهای معتبرتر که سابقه طولانی در تولید پمپ و تجهیزات آبرسانی دارند، معمولاً به دلیل کیفیت و خدمات پس از فروش بهتر، قیمت بالاتری ارائه میدهند. همچنین کشور سازنده—چه محصول ایرانی باشد یا وارداتی—میتواند روی قیمت نهایی اثرگذار باشد؛ زیرا هزینه واردات، گارانتی و کیفیت ساخت در این عامل نقش دارد.
تجهیزات جانبی و ویژگیهای تکمیلی
وجود قطعاتی مثل لرزه گیر، مخزن دیافراگمی باکیفیت، شاسی تقویتشده، کوپلینگ مناسب یا اتصالات کامل میتواند قیمت بوستر پمپ را افزایش دهد. همچنین ویژگیهایی مانند نصب سفارشی، تحمل دمای بالا یا طراحی مخصوص برای فضاهای کوچک نیز جزء عوامل تعیینکننده در قیمت نهایی به شمار میروند.
انواع بوستر پمپ
بوستر پمپ از لحاظ عملکرد و کاربرد به انواع مختلفی تقسیم میشود. در مورد کاربرد بوستر پمپ به گروههای زیر تقسیم میشود که در ادامه به معرفی چند مدل از این بوستر پمپ ها میپردازیم:
بوستر پمپ آبرسانی خانگی
بوستر پمپ آب در ساختمانها، برجها و مجتمعهای تجاری به عنوان یکی از مهمترین تجهیزات تأمین فشار پایدار آب مورد استفاده قرار میگیرد. زمانی که فشار آب شهری توان رساندن آب به تمام طبقات را ندارد یا با نوسان همراه است، بوستر پمپ وارد مدار شده و با افزایش و تثبیت فشار، جریان آب را به صورت یکنواخت در تمام واحدها تأمین میکند. استفاده از این دستگاه بهویژه در ساختمانهای چندطبقه ضروری است، زیرا علاوه بر جلوگیری از افت فشار، باعث بهبود کیفیت آبرسانی، افزایش رفاه ساکنان و عملکرد بهتر سیستمهای تأسیساتی میشود.
بوستر پمپ آتشنشانی
در زمان آتش سوزی، سرعت و فشار مناسب آب نقش تعیینکنندهای در کنترل و اطفای حریق دارد؛ به همین دلیل باید آب با بیشترین فشار و در کوتاه ترین زمان ممکن به محل وقوع آتش پمپاژ شود. بوستر پمپ آتشنشانی دقیقاً برای همین منظور طراحی شده است. این دستگاه با استفاده از چند پمپ قدرتمند و سیستم کنترلی دقیق، توانایی تأمین فشار بالا و پایدار را دارد تا آب بهصورت یکنواخت و بدون افت فشار به تجهیزات آتشنشانی مانند هوزریلها و اسپرینکلرها برسد. به کارگیری بوستر پمپ آتشنشانی در ساختمانها، سولهها و مراکز صنعتی یک ضرورت ایمنی محسوب میشود و نقش مهمی در جلوگیری از گسترش آتش و کاهش خسارات دارد.
بوستر پمپ دور متغیر
طراحی این مدل پمپ به گونهای است که جریان آب همیشه در حال کنترل است. در آپارتمانها که هر واحد بهطور مستقل در حال برداشت آب هستند، فشار آب همیشه و برای همه واحدها باید یکسان عمل کند، برای همین بوستر پمپ دور متغیر با تغییر دبی لحظهای ، فشار ثابت آب را کنترل میکند.
بوستر پمپ دور ثابت
این نوع بوستر پمپ تنها در زمانهایی وارد مدار میشود که میزان مصرف آب افزایش یافته و نیاز به تأمین فشار بیشتر احساس شود؛ بنابراین عملکرد آن بر اساس تشخیص نیاز لحظهای سیستم است و با ورود تدریجی پمپها، فشار آب را بهصورت دقیق و پایدار کنترل میکند. در بوستر پمپهای آبرسانی، معمولاً از سیستم دور متغیر استفاده میشود تا با تنظیم سرعت چرخش پمپها، مصرف انرژی کاهش یافته و فشار کاملاً یکنواخت باقی بماند. اما در بوستر پمپهای آتشنشانی، به دلیل ضرورت تأمین فشار بالا و ثابت در کمترین زمان ممکن، از نوع دور ثابت استفاده میشود تا پمپها بلافاصله با حداکثر توان وارد مدار شده و امکان اطفای سریع و مؤثر حریق فراهم شود.
بوستر پمپ آب گرم
این محصول شامل یک یا چند پمپ جهت سرکولاتور کردن آبگرم خروجی بویلر ها، برخلاف بوستر پمپ های آبرسانی که مجموعه پمپ های هستند که یک فشار ثابتی را تولید می کنند، در بوستر پمپ آب گرم هرکدام از پمپ ها بصورت مجزا یک سرکولاتور را اتجام می دهد که مربوط به چند طبقه است. معمولا در کنار بویلرها نصب می گردند و در مکان های مختلفی از جمله استخرهای خانگی و تفریحی، انواع ساختمان، موتورخانه ها و… کاربرد دارند.
بوستر پمپ اسید
بوستر پمپ اسید استفاده ی زیادی در صنایع دارد، معمولا در شوفاژ خانه ها، کارگاه های تولیدی، تعمیرگاه ها (که کار شستشوی لوله مسی یا آهنی که نیاز به زنگ زدایی دارند)، باطری سازی ها (که نیاز به مقدار مشخصی آب مقطر دارند) و… استفاده میشود.
بوستر پمپ تزریق
پمپ هایی با اندازه کوچک هستند که به یک منبع کلر متصل و خروجی آن در مسیر لوله آب شهری قرار دارد، هنگامی که آب در مخزنی در حال گردش است برای تصفیه کردن نیازمند این هستید که مقداری کلر به آب ورودی تزریق کنید که کل این فرآیند توسط بوستر پمپ تزریق انجام می شود، پس زمانی که بخواهید کیفیت آب را بالا ببرید (چه در شهرک یا هر مکان دیگری) بوسترپمپ تزریق یکی از نیازمندی های آن مکان است.
بوستر پمپ تکفاز
بوستر پمپ تکفاز پمپی الکتریکی است که برای افزایش فشار آب در یک سیستم آبیاری یا لولهکشی به کار میرود. این نوع پمپها از نظر الکتریکی برای کار با منبع تغذیه تکفاز طراحی شدهاند، که اغلب در منازل و کاربردهای کمتر صنعتی مورد استفاده قرار میگیرند.

بوستر پمپ کوچک
بوستر پمپ کوچک، یک دستگاه جمع و جور و کم حجم است که برای افزایش فشار یا حجم مایعات، به خصوص آب، در کاربردهای محدودی به کار میرود. این نوع پمپها به طور معمول در موارد خاصی نیاز به افزایش فشار آب یا تأمین آب در نقاط دورتر از منابع آب دارند. بوستر پمپ ساختمان اغلب در ساختمانها، منازل، یا کاربردهای آبیاری کوچک مورد استفاده قرار میگیرند. آنها میتوانند به صورت اتوماتیک فشار آب را افزایش دهند و در مناطقی که فشار آب عمومی کافی نیست، کمک به تأمین آب با فشار مناسب میکنند. این پمپها عمدتاً از موتورهای الکتریکی کوچک بهره میبرند و از طراحی جمع و جور برخوردارند. همچنین، این نوع پمپها معمولاً به صورت همراه با سیستمهای کنترل اتوماتیک فشار مجهز هستند تا به بهینهسازی عملکرد و صرفهجویی در انرژی کمک کنند.
بوستر پمپ صنعتی
این نوع بوستر پمپ برای تأمین آب با فشار ثابت در انواع فرآیندهای صنعتی کاربرد دارد و زمانی استفاده میشود که پایداری و دقت در فشار آب از اهمیت بالایی برخوردار باشد. در صنایع مختلف، از این بوستر پمپها در کنار پمپهای صنعتی بهره میگیرند تا ظرفیت و توان سیستم افزایش یابد و فشار آب بدون نوسان در خطوط تولید، ماشینآلات و تجهیزات فرآیندی تأمین شود. عملکرد هماهنگ این بوسترها با پمپهای اصلی، علاوه بر افزایش راندمان سیستم، به کاهش استهلاک تجهیزات و تضمین کیفیت عملیات صنعتی نیز کمک میکند.
نحوه کار بوستر پمپ
روزگاری طبقه آخر آپارتمانها، مشتری نداشت. روزهای آخر سال که در کل طبقههای آخر با قطع آب مواجه بودند. مشکل فقط برای آپارتمانها نبود و حتی برخی خانههای ویلایی هم چنین مشکلی داشتند. افت فشار آب مشکلی است که این روزها کمتر با آن دست و پنجه نرم میکند. خوشبختانه امروزه این مشکل حل شده است. بوستر پمپ اختراعی که به کمک آمده و این مشکل را حل کرده است. بوستر پمپ آبرسانی و آتش نشانی وسیلههایی هستند که امروزه نه تنها مشکل فشار آب را حل کردهاند بلکه توانستهاند مشکل آتشسوزی در آپارتمانها و مجتمعهای بزرگ را حل کنند.
کاربرد بوستر پمپ
بوستر پمپ کاربردهای فراوانی دارد. از جمله:
- انتقال آب به تمام طبقات یک ساحتمان بهخصوص طبقات بالایی
- آماده بهکار نگهداشتن سیستم اطفاء حریق
- تامین آب برای سیستمهای تحت فشار در گلخانهها و مراکز کشاورزی صنعتی
- سیستم تصفیه آب
- مدارس
- برج های مسکونی و اداری
- سیستم های آبیاری
- گلخانه ها
- باغ های کشاورزی
- سیستم های کشت صنعتی
- تامین آب شرب مراکز تجاری، تفریحی و ورزشی
- به عنوان یک پمپ تقویت کننده برای پمپ آتش نشانی و پمپ تامین آب در سیستم اطفاء حریق
- آبیاری قطره ای
- باران مصنوعی
- آبیاری مزارع بزرگ
- پمپ آب چاه عمیق
- تامین آب ساختمان ها، شهرها، بیمارستان ها و فرودگاه ها
ویژگی و مزایای بوستر پمپ
استفاده از بوستر پمپ آب میتواند به بهبود و کیفیت زندگی در ساختمانها و بهبود کار دستگاهها و تجهیزات فنی در صنایع کمک کند. بوستر پمپ آب با تامین همیشگی آب راندمان را در تمام مکانها افزایش میدهد. مزایای دیگر بوستر پمپ نسبت به پمپ عبارت است از:
- مصرف پایین انرژی
- فضای کوچک
- استهلاک پایین
- کارکرد دائمی (به دلیل داشتن پمپ رزرو)
- امکان جابجایی ساده (به دلیل جداشدن اجزای آن)
- قابلیت سرویس حین کار
- امکان استفاده در همه زمینهها (برای آبرسانی)
- افزایش طول عمر مفید الکتروپمپها
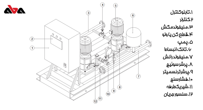
اجزای بوستر پمپ و نحوه آرایش آنها
اجزای اصلی بوستر پمپ عبارت است از :
الکتروموتور
پمپ بوستر پمپ حرکت خود را از الکتروموتور دریافت میکند. با تعداد پمپها تعداد الکتروموتور نیز افزایش پیدا میکند. الکتروپمپها موازی روی بدنه قرار میگیرند. بر اساس کاربرد بوستر دور موتور از 1400 تا 2900 دور برای الکتروموتور انتخاب میشود.
مدار فرمان
تمام تنظیمات بوستر پمپ برای جبران و استارت دستگاه در مدار فرمان قرار دارد. میزان اتلاف انرژی، کاهش یا افزایش راندمان بوستر و استهلاک اجزاء به مدار فرمان بستگی دارد. مدار فرمان در دو سیتم آبرسانی و آتشنشانی با یکدیگر متفاوت است که در ادامه توضیح داده میشود.
بخش مکش
کار این بخش مکش آب در زمان کاهش افت فشار است و به قسمت مکش الکتروپمپ و خروجی مخزن ذخیره متصل است. اجزاء اتصال دهنده عبارتند از:
- فلنج
- صافی
- لرزهگیر
- شیرفلکه قطع و وصل جریان سیال
جوکی پمپ
در بوستر پمپ آتشنشانی کاربرد دارد. فشار ثابت و یک باره در سیستم آتش نشانی باعث میشود فشار زیادی به پمپها وارد شود برای همین از پمپهای کوچکتر استفاده میشود.
مخزن دیافراگمی
به منظور کارکرد بهتر بوسترپمپ، فشار مخزن آب همواره در شرایط معمولی باید ثابت بماند، ثبات فشار از خاموش و روشنشدن زیاد بوستر جلوگیری میکند. این وظیفه به مخزن دیافراگمی سپرده شده است. سیستمی که جوکی پمپ دارد نیاز به مخزن دیافراگمی نیست.
نحوه آرایش بوستر پمپ
به طور کلی 6 مدل آرایش بوستر پمپ وجود دارد که درباره بیشتر به این موضوع میپردازیم:
تک پمپ
یک الکتروپمپ و یک الکترودیزل قرار میگیرد.
دو پمپه
- دو الکتروپمپ
- دو دیزل پمپ
- یک الکتروپمپ و یک الکترودیزل پمپ
چند پمپه
- یک الکتروپمپ و دو دیزل پمپ
- سه دیزل پمپ
در آرایش دو و چند پمپه از پمپ پیشرو یا جوکی پمپ نیز استفاده میشود.
نقشه مدار فرمان بوستر پمپ آب
مهم ترین قسمت یک سیستم کنترل بوستر پمپ مدار فرمان بوستر پمپ و نقشه سیم کشی و سیم بندی تابلو برق بوستر پمپ محسوب می شود. یک طراحی خود در مدار بوستر پمپ می تواند تا حدود زیادی بر عملکرد ، استهلاک مکانیکی و الکترونیکی اجزا پمپ تاثیر مستقیم داشته باشد. مدار فرمان بوستر پمپ یا برای سیستم های آب رسانی تعبیه می شود و یا برای سیستم های آتش نشانی و ایمنی طراحی می شود. از این رو در پیاده سازی و طراحی یک بوستر پمپ هدف از ایجاد مدار فرمان بوستر پمپ باید مشخص باشد. مدار فرمان بوستر پمپ آب خانگی با توجه به اینکه تقریبا در تمامی ساعات شبانه روز آب مورد نیاز است باید بر مبنای مصرف آب در ساختمان باشد و حداکثر دبی مورد نیاز پمپ های بوستر آب رسانی ساختمان با احتساب مجموع حداکثر مصرف آب در ساختمان و این هم در اوج مصرف باید طراحی شود.
در نتیجه مدار بوستر پمپ آب رسانی ساختمان های مسکونی و آپارتمان ها باید به نحوی طراحی شده باشند تا بوستر پمپ با میزان مصرف آب در ساختمان تناسب داشته باشد. این در حالی است که بوستر پمپ های آب آتش نشانی دارای مدار فرمان بوستر پمپ کاملا متفاوتی هستند و باید بر اساس حداکثر توان در زمان های حادثه طراحی شود. در طراحی مدار فرمان بوستر پمپ آتش نشانی باید به گونه ای عمل شود که حداقل یک پمپ همیشه در حال آماده باش در سیستم قرار گرفته باشد.
کنترلر بوستر پمپ
کنترلر بوستر پمپ یک دستگاه الکترونیکی است که برای کنترل و مدیریت عملکرد یک بوستر یا پمپ استفاده میشود. این دستگاهها معمولاً در سیستمهای آبیاری، سیستمهای آبرسانی و فشاردهی، سیستمهای گرمایشی و سرمایشی و سایر نیازهایی که به کنترل و تنظیم فشار و دبی آب یا مایعات مختلف نیاز دارند، استفاده میشوند. این کنترلرها معمولاً شامل سنسورها، الگوریتمهای کنترلی و امکانات تنظیم و برنامه ریزی است که به کمک آنها میتوان فشار و دبی مایع را به صورت خودکار و دقیق تنظیم کرد.
نصب و راه اندازی بوستر پمپ
نصب و راه اندازی انواع بوستر پمپ شامل چندین مرحله است که به ترتیب زیر انجام می شود:
- بررسی شرایط ساختمانی و محیطی
- جا نمایی الکتروپمپ ها در شاسی (آهنی)
- لوله کشی و اندازه گیری کلکتورها و لوله های مونتاژی
- گالوانیزه کردن کلکتورها و رنگ آمیزی
- مونتاژ مجدد تقویت کننده فشار آب
- انجام امور مربوط به برق کشی، کابل کشی و ارتینگ
- مونتاژ شیرهای یکطرفه، شیر دروازه ای(پروانه ای)، صافی مکش
- نصب کامل الکتریکال پمپ بوستر
- تست و آزمایش پکیج بوسترپمپ
- نصب و راه اندازی کامل مجموعه تقویت کننده سیستم آبرسانی بدون آب ریزی (نشتی)
- خدمات نگهداری (چکاب دوره ای)
تفاوت پمپ آب و بوستر پمپ
بسیاری از افراد در زمان خرید بوستر پمپ این سوال را تکرار میکنند که فرق بوستر پمپ با پمپ چیست. عملکرد هر دو دستگاه در زمانی است که آب فشار کافی ندارد، پس چرا باید هزینه اضافه برای قیمت بوستر پمپ پرداخت. در جواب باید اینگونه گفت: عملکرد پمپ با یک فشار ثابت است و امکان ندارد که تغییری در فشار خروجی ایجاد کند، بهطور مثال اگر دو طبقه از یک ساختمان همزمان از آب استفاده کنند طبیعی خواهد بود که فشار خروجی آب نسبت به زمانی که یک طبقه از آب استفاده میکرد کاهش یابد، چون برای پمپ هیچ تفاوتی نخواهد داشت که یک طبقه در حال کار است یا دو طبقه و نمیتواند سرعت خود را تغییر دهد، برای همین با یک فشار ثابت به کار خود ادامه خواهد داد.
اما در بوستر پمپ آبرسانی خانگی با استفاده یک طبقه دیگر از آب، فشار خروجی دستگاه تغییر خواهد کرد و با خارج شدن یک طبقه مجددا فشار خروجی به حالت اول خود برخواهد گشت. یعنی اینکه بوستر پمپ لحظهای کنترل فشار آب را برعهده دارد و از افت هرگونه فشاری جلوگیری میکند. بوستر پمپ در زمان فشار صفر پمپها از مدار خارج میشود و با افت فشار سیستم پمپها به میزانی که نیاز است روشن و افت فشار را جبران میکند.
تفاوتهای بوستر پمپهای آتش نشانی و آبرسانی
تفاوت در کاربرد : کاربرد این دو نوع بوستر پمپ متفاوت است. در نوع آبرسان برای مصارف خانگی، کارخانهها و مجتمعهایی که نیاز به آب در تمام ساعات روز دارند استفاده میشود؛ اما در نوع آتشنشانی تنها برای موارد خاص استفاده میشود، مثلا در زمان آتشسوزی از بوستر پمپ آتشنشانی استفاده میشود.
تفاوت در جوکی پمپ
جوکی پمپ در سیستم آبرسانی دور ثابت کار کاهش صدای بوستر پمپ را دارد؛ اما در سیستم آتشنشانی جوکی پمپ به دلیل آنکه احتمال دارد در مسیرهای طولانی نشتی بوجود آید جوکی پمپ باعث افزایش دبی خواهد شد. بوستر پمپ دور متغیر جوکی پمپ وجود ندارد.
تفاوت در تابلو برق
اگر فرض شود که سیستم آتش نشانی دور ثابت و سیستم آبرسانی دور متغیر است. تابلو برق این دو سیستم با هم متفاوت خواهد بود. در سیستم دور ثابت از کلید پرشر Pressure Switch استفاده میشود. کلید پرشر با کاهش فشار هر پمپ، پمپ دیگری را در مدار قرار میدهد. در واقع این سوئیچها اجازه افت فشار را نمیدهد. اما در دور متغیر از سیستم اینورتر استفاده میشود. اینورتور در این سیتم تغییرات فشار را بسیار نرم بوجود میآورد برای همین همیشه آب در لولهها با فشار عالی در حال چرخش است. بوستر پمپ آتشنشانی از سیستم آبرسانی فضای بیشتری را اشغال میکند.
استانداردهای بوستر پمپ آتش نشانی
موسسات استاندارد برای بالابردن کیفیت هرساله استانداردهای متفاوتی را معرفی میکنند در این میان بوستر پمپ آتش نشانی به دلیل آنکه در مواقع ضروری باید به بهترین شکل کار کند مورد توجه موسسات استاندارد است. استانداردهای مختلفی برای بوستر پمپ آتشنشانی وضع شده است. این استانداردها عبارتند از:
- NFPA20 که در آمریکا وضع شده است.
- BSEN12845 در اروپا تصویب شده است.
- اما بهغیر از این استاندارد، استانداردهای UL448 و FM1311 وجود دارد.
- استاندارد معتبر در جهان استاندارد UL/FM است که علاوه بر استاندارد BSEN1248 اروپا و استاندارد NFPA20 موارد تکمیلی دیگری نیز در خود گنجانده است.
- مکان اتاق بوستر: دیوارهای اتاق دارای دو متر ارتفاع است.
- دمای اتاق: دمای اتاق حداقل 5 درجه سانتیگراد است.
- دمای آب: حداکثر دمای آب 40 درجه است.
استاندارد در مورد جنس تجهیزات بوستر
اصول بنیادین برخی از بوستر پمپ های آتش نشانی شامل اجزای زیر هستند.
- پروانه: جنس پروانه بوستر از برنز است. در مواردی میتوان از استیل هم استفاده کرد.
- پوسته بوستر: جنس پوسته از چدن خاکستری GG، چدن نشکن، برنز و استیل است.
- محور بوستر: جنس محور بوستر از استیل است.
- یاتاقان: یاتاقان باید بتواند تا 5000 بار را تحمل کند.
- منبع تغذیه: منبع برق در دسترس قرار گیرد. قطع برق بیش از 4 ساعت خارج از استاندارد است.
- ولتاژ: در ترمینالهای خط کنترلکننده در شرایط راهاندازی موتور بیش از 15 درصد کمتر از حد نرمال مجاز نیست.
- سیمکشی: از کنترلکنندهها باید در یک کانال فلزی سفت وسخت، کانال فلزی واسطهای، لوله فلزی الکتریکی یا کانال غیر فلزی اتعطاف پذیر قرار گیرد.
- جوکی پمپ: همه بوستر پمپها جوکی پمپ مخزن مخصوص خود را باید اضافه کنند.
خط مخزن فشار
از جنس برنجی، لوله مسی سخت یا لوله از جنس استنلس استیل از سری 300 است و اتصالات نیز باید 1.5 اینچ اسمی انتخاب شود. در زمان استارت جوکی فشار پمپ در کمترین حالت 10PSIاست این فشار کمتر از حالت استپ است. فشار پمپ اصلی در زمان شروع به کار حداقل 10PSI از فشار پمپ جوکی کمتر است.
دیزل موتور
برای هر 25 درجه دمای محیط یک درصد از قدرت اسب بخار کم میشود. دیزل موتور در زمانی که پمپ تحت فشار محیطی است حداقل قدرت موتور برابر 4 خواهد بود. در مواقعی نیز حداقل قدرت دیزل از نیروی ترمز موتور در سرعت نامی بیشتر خواهد بود. در مواردی که دیزل موتور 300 متر بالاتر از سطح دریا قرار میگیرد 4 درصد از توان دیزل موتور نوشته شده روی پلاک باید کم شود. دیزل موتورمجهز به گاورنر است. گاورنر قادر به تنظیم سرعت موتور در محدوده ده درصد بین خاموش و حداکثر بار کاری پمپ است. دیزل موتور مجهز به سرعت سنج است. فشار روغن و دما در دیزل موتور توسط سنسورها باید تنظیم شود. تمام سنسورها باید به تابلو برق وصل شوند.
- خروجی توان موتور: ECM به هر دلیلی نباید عمدا باعث کاهش توانایی موتور در تولید توان خروجی اسمی موتور شود.
- سنسورهای ECM: در صورت خرابی سنسورها، موتور مجهز به سنسور اضافی است تا دچار خرابی و کاهش توان خروجی نشود.
- خط سنجش فشار: یک خط حسگر فشار باید با اندازه اسمی 0.5 اینچ داخل قطر به موتور وارد شود.
- کنترل محدودیت فشار: یک خط سنجش باید از اتصال بین فلنج تخلیه پمپ و شیر کنترل تخلیه، به موتور نصب شود.
- کنترل مکش: یک خط حسگر باید از اتصال در فلنج ورودی پمپ به موتور نصب شود. ظرف 20 ثانیه بعد از نیاز به آب، پمپها باید با فشار تخلیه ±10 درصد را در کل دامنه حفظ کنند.
- فشار تخلیه: مجاز است تا هر زمان که شرایط مجددا تغییر میکند مجددا تثبیت شود.
مشخصات فنی بوستر پمپ آبرسانی و آتش نشانی
منظور از مشخصات فنی کلیه اطلاعاتی است که در زمان خرید بوستر پمپ یا هر وسیله دیگر باید بدانید. این اطلاعات شامل تجهیزات، اطلاعات نصب و نگهداری دستگاه، جنس مواد و دستورالعملهای کاربری است. در ادامه مهمترین مشخصات فنی دستگاه بررسی شده است.
- تابلو برق: منبع تغذیه و برق ورودی به دستگاه اولین مشخصه فنی یک دستگاه است. بسته به توان خروجی منبع برق متفاوت است.برق ورودی تکفاز و سه فاز است.
- توان الکتروپمپ: مهمترین جزء یک بوستر الکتروپمپ بهکار رفته در آن دستگاه است. میزان توان خروجی یک بوستر به توان و تعداد الکتروپمپ که کنار هم چیدمان شده، بستگی دارد. مدل پمپ، قدرت پمپ، حداکثر آبرسانی و میزان ارتفاع پمپاژ آب، اطلاعاتی است که در زمان خرید بوستر پمپ باید به آن توجه شود.
- منبع دیافراگمی: یکی دیگر از مشخصاتی که باید به آن توجه شود منبع دیافراگمی است که تنظیم و فشار آب را کنترل میکند. میزان مخزن منبع دیافراگمی با میزان طبقات و فشار مورد نیاز هماهنگ است. البته بوسترهای دور متغیر نیاز به منبع دیافراگمی ندارند و این مورد بیشتر در مخازن دور ثابت استفاده میشود.
- جنس پروانه پمپ: جنس پروانه معولا از استیل مرغوب است؛ جنس پروانه از آنجا مهم است که بتواند در دماهای متغییر به خصوص در فصل گرما به درستی کار خود را انجام دهد.
برندهای بوستر پمپ آب موجود در آبادیزل
آبادیزل با انتخاب بهترین و مطمئنترین برندهای بوستر پمپ در بازار توانسته است، رضایت مشتریان را به خود جلب کند. این انتخاب به واسطه حضور مهندسین و کارشناسان فنی در رشتههای مکانیک، الکترونیک و متالورژی در مجموعه آبادیزل است. مشاوران آبادیزل بعد از بررسی برندهای موجود در بازار و بررسی کیفیت و قیمت بهترین برندها را برای عرضه به مشتریان خود انتخاب میکند.
- بوستر پمپ ایتالیایی DAB
- پمپ SPC جهت مصارف عمومی و تخصصی
- پمپ خطی SPC
- بوستر پمپ آتشنشانی با تابلو EN 12845
راهنمای انتخاب و خرید بوستر پمپ آب
خرید بوستر پمپ جدای از کاربرد سیستم آبرسانی و آتشنشانی که در انتخاب متفاوت عمل خواهد شد. دو مولفه دیگر هم وجود دارد که با در نظر گرفتن مقدار آنها بوستر پمپ انتخاب خواهد شد. محاسبه مقدار دبی و هد در بوستر پمپ عملیات پیچیدهای دارد که به اختصار و برای آشنایی مقدماتی اشاره میشود. در هنگام خرید بوستر پمپ به نکات زیر توجه کنید:
دبی
منظور از دبی مصرف آب ساختمان است. عدد مصرف آب ساختمان به روش SFU محاسبه میشود. در این روش میزان مصرف یک شیر آب در مناطق مختلف ساختمان محاسبه میشود. برای اینکار حداکثر مصرف لحظهای شیرهای آب از جدول FU مشخص میشود. عدد بهدست آمده را با کمک نمودارهای مربوطه به GPM تبدیل میکنیم.
هد
رساندن آب به بالاترین ارتفاع از ساختمان منجر به افت فشار خواهد شد. لذا باید مقدار دقیق ارتفاع برای پمپ انتخاب شود برای این کار فرمول زیر عددگذاری میشود.
(h = h1 + h2 + h3 + h4)
- H1 برابر است با ارتفاع بوستر پمپ تا دورترین شیر آب از بوستر
- H2 برابر است با ضرب دورترین وسیله بهداشتی از مخزن آب در عدد 16.5
- H3 از جدول مقررات ملی ساختمان فشار مورد نیاز در پشت بالاترین وسیله بهداشتی نوشته میشود.
- H4 مسافت عمودی از محل ورود مکش آب تا محل ورود مکش بوستر پمپ
ليست قيمت پکيج آتش نشانی با تابلوی EN 12845
جدول مشخصات پمپ آتش نشانی در جدول زیر ذکر شده است برای راهنمای خرید و قیمت و اطلاعات بیشتر در مورد بوستر پمپ با کارشناسان ما تماس بگیرید.
| مدل | ولتاژ V | قدرت KW | قدرت HP | حداکثرارتفاع m | ارتفاع m | دبی Q:m³/h |
| 1KDN 32-200/219-JET | 380 | 11 | 15 | 63 | 62-39.5 | 12-48 |
| 1KDN 40-250/240-MD | ديزلی Lombardini | 19 | 25 | 76.3 | 76-58.5 | 18- |
برای مشاوره رایگان و خرید با مشاوران ما در گروه آبادیزل در تماس باشید.
۰۲۱۳۳۹۹۲۲۹۴ - ۰۲۱۳۳۹۱۴۰۸۴











دیدگاه خود را با ما در میان بگذارید
امتیاز: